Grodzisk Mazowiecki

Dom na sprzedaż

4 pokoje 90,50 m2 8 065,19 zł/m2

729 900 zł

nowa oferta
Anna Malesza

Specjalista d/s sprzedaży nieruchomości nr licencji 14140

Opis nieruchomości

Przedstawiona fotografia ma charakter poglądowy i obrazuje wcześniejszy etap realizacji.

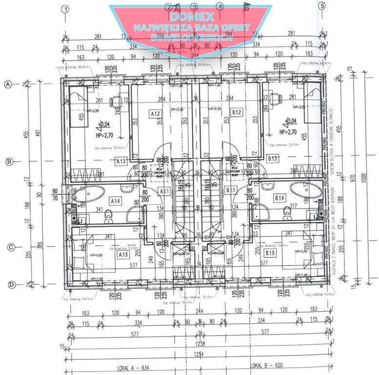
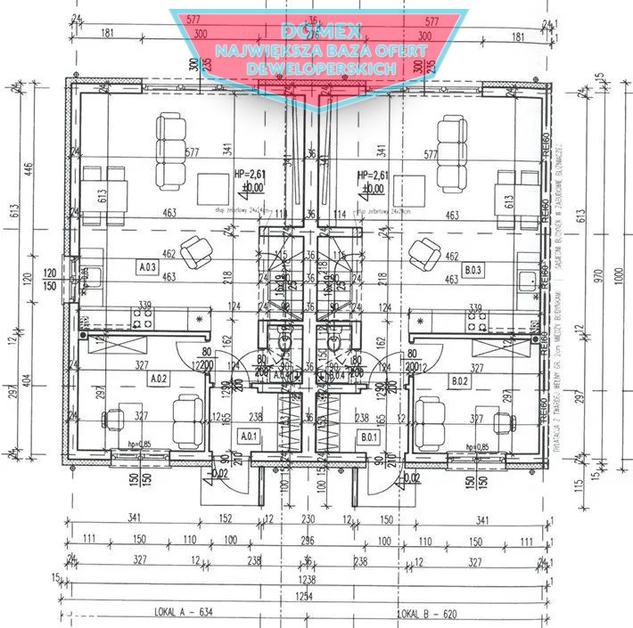
Segment wewnętrzny o pow. 90,51 m² na działce 320 m2 usytuowany w bardzo ładnej, cichej części miasta Grodzisk Mazowiecki.

Stan deweloperski. - Kupujący nie płaci podatku PCC.

Parter 47,34 m2:

wiatrołap 3,63m2,
gabinet 9.34 m2,
salon z aneksem kuchennym 33,37 m2,
WC 1 m2.

Poddasze 43,17 m2:

komunikacja 4,96 m2,
pokój 9,19 m2,
pokój 12,24 m2,
pokój 10,82 m2,
łazienka 5,96 m2.

Dostępne dwa lokale wewnętrzne, w jednym widna kuchnia od frontu otwarta na salon z jadalnią, w drugim kuchnia połączona z jadalnią i salonem, a od frontu dodatkowy pokój, np. dla seniora lub jako gabinet.

Budynek ogrzewany będzie pompą ciepła, z przyłączem do miejskiej sieci wodociągowej i kanalizacyjnej.
Dom wybudowany w technologii tradycyjnej murowanej z pustaka Ytong na ciepłej płycie fundamentowej, ocieplonej styrodurem XPS, ściany grafitowym styropianem gr.15cm. Dach krokwiowo-jętkowy pokryty blachodachówką panelową. Okna marki Raven na pofilach PCV Schuco 7-komorowych, trzyszybowe. Drzwi krajowe pasywne marki Splendoor, przeszklone. Ogrzewanie podłogowe parter i piętro z wykorzystaniem pompy ciepła marki BAXI z grupy DeDetrich. Dwa miejsca parkingowe przed lokalem.

Atutem jest zielona okolica. Do stacji PKP około 2 km. w okolicy dużo sklepów, supermarketów.

Planowany termin oddania budynku do użytkowania: III kwartał 2026.

Gorąco polecam i zachęcam do obejrzenia.

WARUNKI WSPÓŁPRACY - pracujemy wyłącznie po podpisaniu umowy pośrednictwa.
Pośrednik odpowiedzialny zawodowo za wykonanie umowy pośrednictwa: Anna Malesza (licencja nr: 14140)
Jako biuro nieruchomości realizujemy nasze usługi w oparciu o umowę pośrednictwa, która gwarantuje bezpieczeństwo transakcji oraz pełne wsparcie na każdym etapie współpracy. Wynagrodzenie pobieramy w formie prowizji, zgodnie z warunkami określonymi w zawartej umowie.

Pośrednik odpowiedzialny zawodowo za wykonanie umowy pośrednictwa: Anna Malesza (licencja nr: 14140).

Nota prawna

Opis oferty zawarty na stronie internetowej sporządzany jest na podstawie oględzin nieruchomości oraz informacji uzyskanych od właściciela, może podlegać aktualizacji i nie stanowi oferty określonej w art. 66 i następnych K.C.

Szczegóły

Symbol oferty DMX-DS-2515
Powierzchnia 90,50 m²
Powierzchnia użytkowa 90,50 m²
Powierzchnia działki 187 m²
Liczba pokoi 4
Rodzaj domu segment
Technologia budowlana beton komórkowy
Liczba pięter w budynku 1
Garaż w bryle
Okna PCV
Pokrycie dachu blachodachówka
Stan budynku do wykończenia
Ogrodzenie działki metalowe
Rok budowy 2026
Gaz tak - miejski
Woda tak - miejska
Ogrzewanie C.O. GAZOWE
Prąd jest
Kanalizacja miejska

Podobne oferty

Dom na sprzedaż - Grodzisk Mazowiecki
dom na sprzedaż - Grodzisk Mazowiecki

DMX-DS-2522

Grodzisk Mazowiecki
dom na sprzedaż

4 pokoje 90,51 m²

729 900
8 064,30 zł/m2
nowa oferta
Dodaj
do notatnika
Dom na sprzedaż - Grodzisk Mazowiecki
dom na sprzedaż - Grodzisk Mazowiecki

DMX-DS-2521

Grodzisk Mazowiecki
dom na sprzedaż

4 pokoje 90,51 m²

729 900
8 064,30 zł/m2
nowa oferta
Dodaj
do notatnika
Dom na sprzedaż - Grodzisk Mazowiecki
dom na sprzedaż - Grodzisk Mazowiecki

DMX-DS-2518

Grodzisk Mazowiecki
dom na sprzedaż

4 pokoje 90,51 m²

729 900
8 064,30 zł/m2
nowa oferta
Dodaj
do notatnika
Dom na sprzedaż - Grodzisk Mazowiecki
dom na sprzedaż - Grodzisk Mazowiecki

DMX-DS-2509

Grodzisk Mazowiecki
dom na sprzedaż

4 pokoje 90,51 m²

729 900
8 064,30 zł/m2
Dodaj
do notatnika
PLN
PLN
PLN
PLN
PLN
PLN
PLN
%
PLN
PLN
PLN

PLN

Dane:

PLN
%

Wynik:

PLN
pierwsza rata
ostatnia rata

Napisz do nas

Proszę wypełnić to pole
Proszę wypełnić to pole
Proszę wypełnić to pole
Proszę wypełnić to pole
Trwa wysyłanie...

Ta strona wykorzystuje pliki cookies w celach statystycznych oraz w celu dostosowania naszych serwisów do indywidualnych potrzeb klientów. Zmiany ustawień dotyczących plików cookie można dokonać w dowolnej chwili modyfikując ustawienia przeglądarki. Korzystanie z tej strony bez zmian ustawień dotyczących cookies oznacza, że będą one zapisane w pamięci urządzenia.

rozumiem